Location Bureaux63 RUE DE RIVOLI75001 PARIS

Désignation

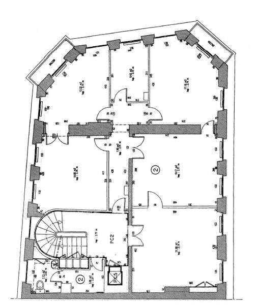
Dans un immeuble ancien de bon standing, nous vous proposons à la location une surface de bureaux


Surfaces

Type Etage Surface Loyer Charges Disponibilité
Bureaux 2 110 m² 580 € 36.36 € Nous consulter

Prestations

  • Parties communes de bon standing
  • Interphone
  • Ascenseur
  • Chauffage individuel gaz
  • Cave
  • DPE : en cours

Conditions juridiques et financières

Bail : 3/6/9 ans

Régime Fiscal : TVA

Taxe bureaux : 25.77 €/m²/an

Impôt foncier : 14 €/m²/an

Indexation : ILAT

Dépôt de garantie : 3 mois de loyer HT/HC

Honoraires : 30% HT du loyer annuel HT/HC, à la charge du preneur.

110 m²non divisibles

Loyer bureaux (Hors Taxes, Hors Charges)

576 € / m²/an

Charges
En cours de détermination
Disponibilité
Nous consulter

Nous contacter

Pascale FRAISSE

Accès

63 RUE DE RIVOLI 75001 PARIS

MétroChâtelet - 351 m
RERChatelet-Les Halles - 551 m

Diagnostic de Performance Énergétique

CONSOMMATION En cours de détermination

GES En cours de détermination

Références

Découvrez nos références

Découvrir