Location Bureaux28 RUE DE MOGADOR75009 PARIS

Désignation

A proximité des Grands Magasins, dans un immeuble tertiaire de caractère, nous vous proposons une surface de bureaux.


Surfaces

Type Etage Surface Loyer Charges Disponibilité
Bureaux 2 230 m² 730 € 67.6 € Immédiate
Salle de Réunion Rdc 29 m² 550 € 67.6 €

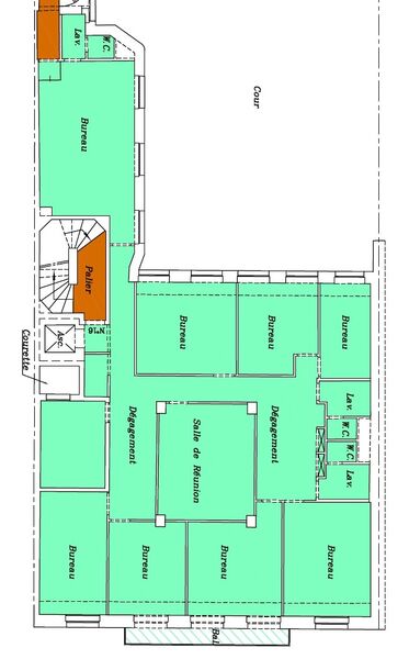
Prestations

  • Locaux livrés rénovés
  • Surface traversante (Est / Ouest) très lumineuse donnant sur rue de la Chaussée d'Antin et sur jolie cour intérieure
  • Grande flexibilité d'aménagement
  • Belle hauteur sous plafond (3,15 m)
  • Accès sécurisé
  • Ascenseur
  • Climatisation réversible
  • Configuration actuelle / possible :
  • Entrée
  • 7 bureaux / OPen space
  • 2 salles de réunion : 1 en R+2 avec cuisine ouverte et 1 en RDC sur cour
  • 3 sanitaires
  • Local technique
  • Balcon
  • DPE : en cours

Conditions juridiques et financières

Bail : 3/6/9 ans

Régime Fiscal : TVA

Taxe bureaux : 23.42 €/m²/an

Impôt foncier : 27 €/m²/an

Frais de gestion : inclus dans les charges

Dépôt de garantie : 3 mois de loyer HT/HC

259 m²divisibles à partir de 230 m²

Loyer bureaux (Hors Taxes, Hors Charges)

720 € / m²/an

Charges
En cours de détermination
Disponibilité
Immédiate

Nous contacter

Christophe LENOIR

Accès

28 RUE DE MOGADOR 75009 PARIS

MétroChaussée d'Antin (La Fayette) - 301 m
RERAuber - 300 m

Diagnostic de Performance Énergétique

CONSOMMATION En cours de détermination

GES En cours de détermination

Références

Découvrez nos références

Découvrir