Vente Bureaux31-37 RUE CENSIER75005 PARIS
Désignation
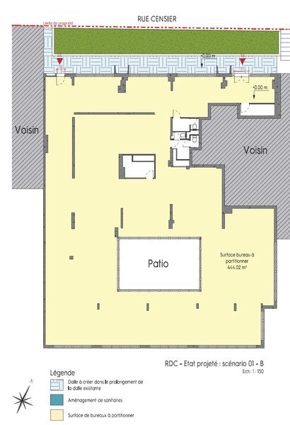
A proximité du métro 'Censier Daubenton', dans un immeuble moderne, nous vous proposons une surface de bureaux.
Surfaces
Type | Etage | Surface | Prix** | Disponibilité |
---|---|---|---|---|
Bureaux | Rdc | 484 m2 | NC | Après travaux |
Prestations
- Quartier très agréable : Mouffetard, Censier, Monge...
- Locaux à usage de Bureaux et Commerce.
- Surface en RDC donnant sur rue calme, patio intérieur et jardin.
- Surface "brute" à rénover éclairées par 62 fenêtres
- Aménagement possible en open space ou cloisonné
- Gardien
- Chauffage collectif
- Possibilité de climatiser
- 5 parkings en sous-sol
- DPE : en cours
Conditions juridiques et financières
Régime Fiscal : TVA
Taxe bureaux : 26 €/an
484 m²non divisibles
Prix bureaux (Hors Droits, Hors Honoraires)
>Nous consulter
Charges
En cours de détermination
Disponibilité
Immédiate
Accès
31-37 RUE CENSIER 75005 PARIS
MétroCampo-Formio - 650 m
Diagnostic de Performance Énergétique
CONSOMMATION En cours de détermination
GES En cours de détermination
